Balcon sur la Méditerranée
Phase conception et permis de construite
Année 2023 Travaux prévu pour 2024
Projet:
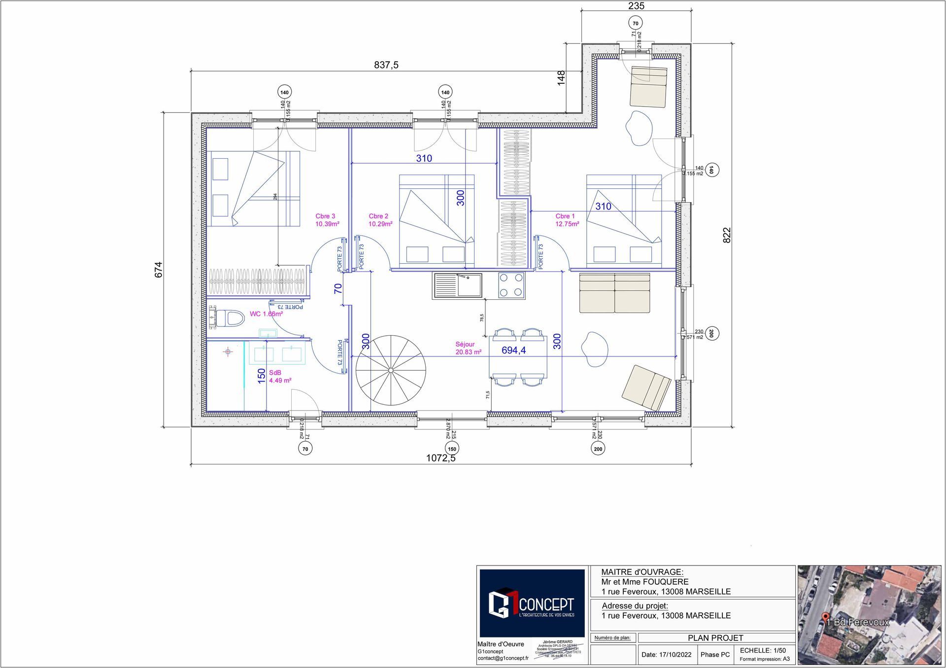
Les clients sont actuellement propriétaires d'une maison située sur la corniche de Marseille. Il souhaitaient réaliser une surélévation pour pouvoir accueillir leurs enfants ou amis. Ils désiraient avoir une pièce à vivre avec une cuisine, une séjour et 3 chambres.L'étage pouvant être indépendant du rez-de-chaussée.
Après avoir étudié le site et être monté sur le toit, il était évident d'orienter l'ensemble des pièces de vie vers la mer méditerranée et les chambres orientées vers la cour intérieure, à l'opposé de la rue pour éviter le bruit des voitures.
L'orientation SudOuest impliquait également une protection solaire durant la journée et le soir, d'où la création d'un brise soleil.
Création d'une terrasse pour profiter de la vue exceptionnelle.
Le brise soleil est réalisé en tôle et poteaux inox afin de donner une finesse et une légèreté au projet.
L'enduit de teinte Ocre permet de mettre en valeur la surélévation.














